中央 貸店舗・事務所  

 駅近く便利。徒歩 約4分。南西角地、見通し良し。
 エステ・サロン・美容院・事務所 スケルトン渡し。
 賃料 200,000円
 敷金3ヶ月 礼金1ヶ月 
所在地:長野県松本市中央1丁目10-1

交通:JR篠ノ井線 松本駅 徒歩4分 

築年数:1999年11月

建物階数:地上3階建て

建物構造:鉄骨造

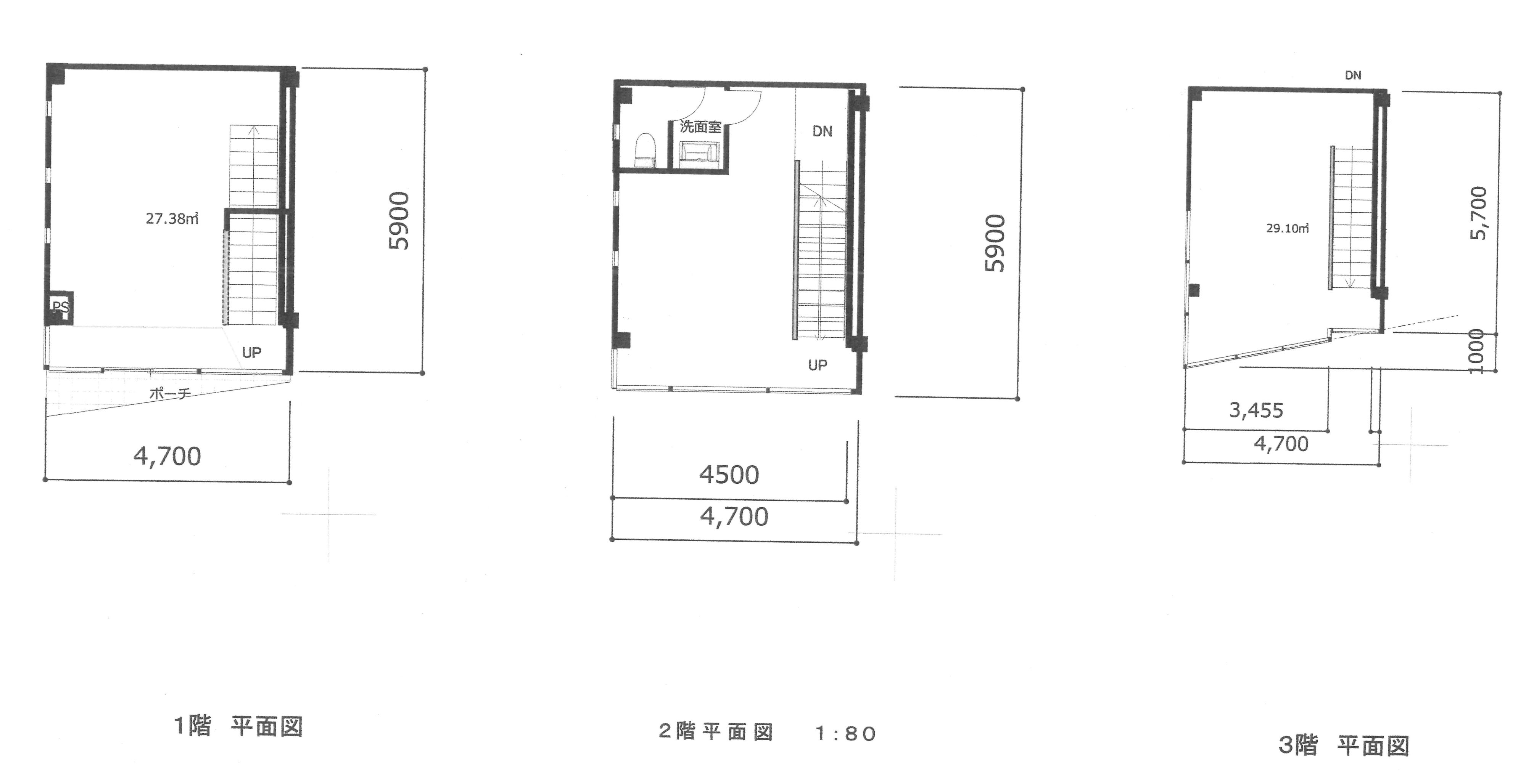
面積:84.56㎡(25.57坪)
   1階27.38㎡/2階27.38㎡/29.10㎡

管理形態:定期巡回 

取引形態:専任        契約期間:5年    

駐車場:無し

引渡時期:2026年3月下旬    現況:入居中
 

設備

トイレ付

周辺環境

松本駅近く。徒歩 約4分

特記事項

西・南角地、見通し良。
飲食店不可。
エステ・サロン・美容院・事務所
スケルトン渡し。

3階建。1階~3階一括。
1階 27.73㎡。2階 27.73㎡。3階 29.10㎡。
 合計84.56㎡(25.57坪)
 引渡し3月下旬。

 
 
 
 

 売買   賃貸   貸駐車場